Rénovation complète d’une ancienne maison

Repenser l’aménagement d’une maison ancienne
Notre métier nous amène parfois à repenser complétement les espaces et donc l’aménagement d’une maison ancienne.
L’intérêt de ce type de projet c’est que nous partons à la fois d’une page déjà écrite avec ses contrainte techniques, et un cadre plus ou moins libre donné par les clients. Place ensuite à notre créativité !
Le client nous a contacté alors qu’il avait déjà commencé à faire faire des devis mais se rendait bien compte que la réalisation de plans d’aménagement allait être indispensable. Ceci permettant d’avoir des devis fiables, mais surtout pour optimiser l’existant voire décider du type d’extension souhaitée.
Ce type de projet doit faire également l’objet d’une déclaration préalable ou d’un permis de construire. Dossier que nous pouvons mener pour vous.
Sur ce dossier le client a lui-même géré le dépôt de la déclaration préalable. Nous avons juste fourni la vue 3D montrant l’insertion dans le site du projet.
Une collaboration courte mais intense.
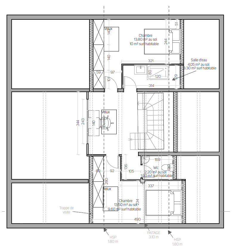
Plans 2D
Plusieurs sujets à intégrer dans nos propositions outre les fonctions attendues par le client :
– Un premier étage en partie en sous pentes à optimiser avec 1 voire 2 chambres et une SDE.
– Une extension possible jusqu’en limite de propriété plus ou moins grande. Ceci ayant une implication sur la surface habitable disponible à l’étage.
– Un escalier à situer de façon optimum pour monter à l’étage
– Des ouvertures et la porte d’entrée pouvant changer de place
Après plusieurs propositions de plans RDC et étage, le client a pu décider dans un délais très raisonnable, le type d’extension voulue sachant qu’il avait déjà un budget travaux précisé par ses premiers devis.
3d réaliste – aménagement intérieur

