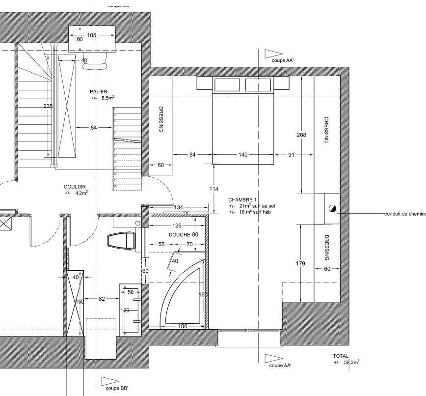
Agrandissement de salle de bain en sous pente

Pour ce projet il s’agissait d’abord d’envisager plusieurs solutions afin d’agrandir une salle de bain, voire pour créer une salle d’eau supplémentaire pour la chambre parentale. La chambre parentale devant également être agrandie.
Après présentation de différentes options pour chaque solution, les clients ont décidé de ne faire qu’une seule grande salle de bain.
Les contraintes étaient fortes car nous étions en sous pente, avec des décrochés de toiture, et un mur porteur devait être ouvert.
Ce qui rassurait les clients c’est d’avoir vu ce type de réalisation chez des voisins possédant une maison construite sur le même modèle. Nos 3D réalistes ont fini de les aider à se projeter.
Une fois les plans validés, nous sommes passés au chiffrage des travaux par un maçon plaquiste, un plombier, un électricien et un peintre. Tous se connaissant, il leur a été facile de se coordonner.
Même si nous essayons de penser à tout avant le chantier, il n’est pas rare d’avoir des modifications en cours de chantier, et avoir des artisans de confiance qui se parlent entre eux tout en informant le client, c’est toujours mieux. Pour notre part, nous restons en veille notamment sur des modifications éventuelles à apporter aux plans.
Parfois, et surtout dans des espaces contraints, 10 cm peuvent changer beaucoup de choses.
Aussi sur ce chantier, l’ouverture du mur porteur a déterminé définitivement l’aménagement de l’espace (taille du meuble vasque, emplacement du WC,…). Il nous a fallu être particulièrement réactifs ainsi que l’équipe d’artisans pour apporter des modifications de dernière minute, même mineure.
Ce projet de salle de bain en sous pente vous a plu? Venez faire ce jeu alors !
Plan 2d
Chantier
Vidéos